gartentherapiezentrum bonn
neubau für den lvr in bonn (2018-2019)

der neubau des gartentherapiezentrums auf dem klinikgelände soll das therapeutische angebot der lvr-klinik bonn erweitern.
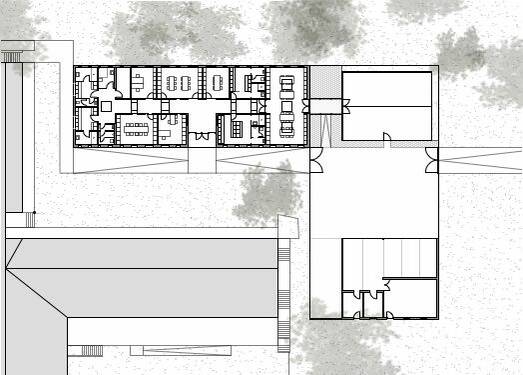
das gartenzentrum ist ein mischbetrieb aus den berufssparten blumen- und zierpflanzenanbau, garten- und landschaftsbau und floristik. Das haupttätigkeitsfeld liegt in der Pflege der klinikinternen vegetationsanlagen und der parkanlage. im rahmen der therapie werden therapieteilnehmer in die pflanzenpflege und zucht eingebunden. gezüchtete schnittblumen und zimmerpflanzen dienen der dekoration von veranstaltungen und der stationsbereiche.
im hauptgebäude sind der werkraum für floristik und indoorbegrünung, zwei büros, sowie sanitär-, umkleide- und sozialräume für mitarbeiter und therapieteilnehmer untergebracht.

